10套农村二层别墅户型,占地不大颜值很高,来年开春就建这样的
农村建房遵循三个设计原则:颜值要高,造价要低,功能要实用。宅基地就那么大一块,一定要好好设计规划才行!
今天给大家分享的10套二层农村别墅,就完全符合上面这三点要求。户型颜值在线,性价比实用,最重要的是经济实惠造价低,来看看哪一套是你的最爱吧。

占地尺寸:9.5m*8.8m
占地面积:85.2㎡
建筑面积:173.3㎡
建筑高度:9.6m


户型二:

占地尺寸:15.1m*9m
占地面积:124.7㎡
建筑面积:212.4㎡
建筑高度:9m


户型三:

占地尺寸:17m*17m
占地面积(不含庭院):124.9㎡
建筑面积(不含庭院):249㎡
建筑高度:9.3m


户型四:

占地尺寸:12.5m*19m(含庭院)
占地面积:164㎡(不含庭院)
建筑面积:329㎡
建筑高度:10.05m


户型五:

占地尺寸:9.3m*10.04m
占地面积:99㎡
建筑面积:235.7㎡
建筑高度:8.9m


户型六:

占地尺寸:19.88m*12.27m
占地面积:241㎡
建筑面积:485.43㎡
建筑高度:10.1m


户型七:

占地尺寸:17.61m×13.56m
占地面积:255㎡
建筑面积:432㎡
建筑高度:8.31m


户型八:

占地尺寸:17.6m*14.66m
占地面积:252㎡(双户)
建筑面积:493.5㎡(双户)
建筑高度:8.44m


户型九:

占地尺寸:9.76m*15.03m
占地面积:145㎡
建筑面积:290.6㎡
建筑高度:9.7m


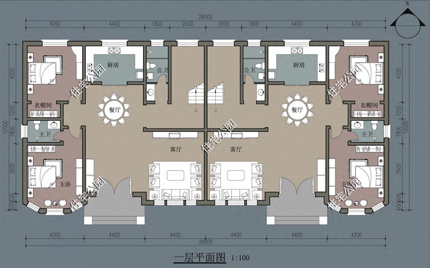
户型十:

占地尺寸:26.5m×12.5m(双户)
占地面积:326.15㎡(双户)
建筑面积:640.65㎡(双户)
建筑高度:10.89m


关注本号,更多农村自建房户型图欣赏,还有建房小知识,一手掌握。
声明:本网所登载内容出于更直观传递信息之目的。该内容版权归原作者所有,并不代表本网赞同其观点和对其真实性负责。若有来源错误或者侵犯您的合法权益,请及时通过邮箱rwzbs@126.com与我们联系,我们会及时反馈并进行处理。
本页链接:http://todaychina.zgshjdw.com/a510000-show/news-531.html