10套一层农村别墅户型,地下室、大庭院全都有,家家都能建得起
很多农村人在城里买了房,但农村的房子又不想荒废,这个时候建栋一层小平房正合适,逢年过节可以回去跟亲戚好友相聚,退休了还可以回乡下养老。
今天就给大家送上10套一层农村别墅,户型经典实用,地下室、大庭院全都有,准备建房的可要抓紧时间收藏了。

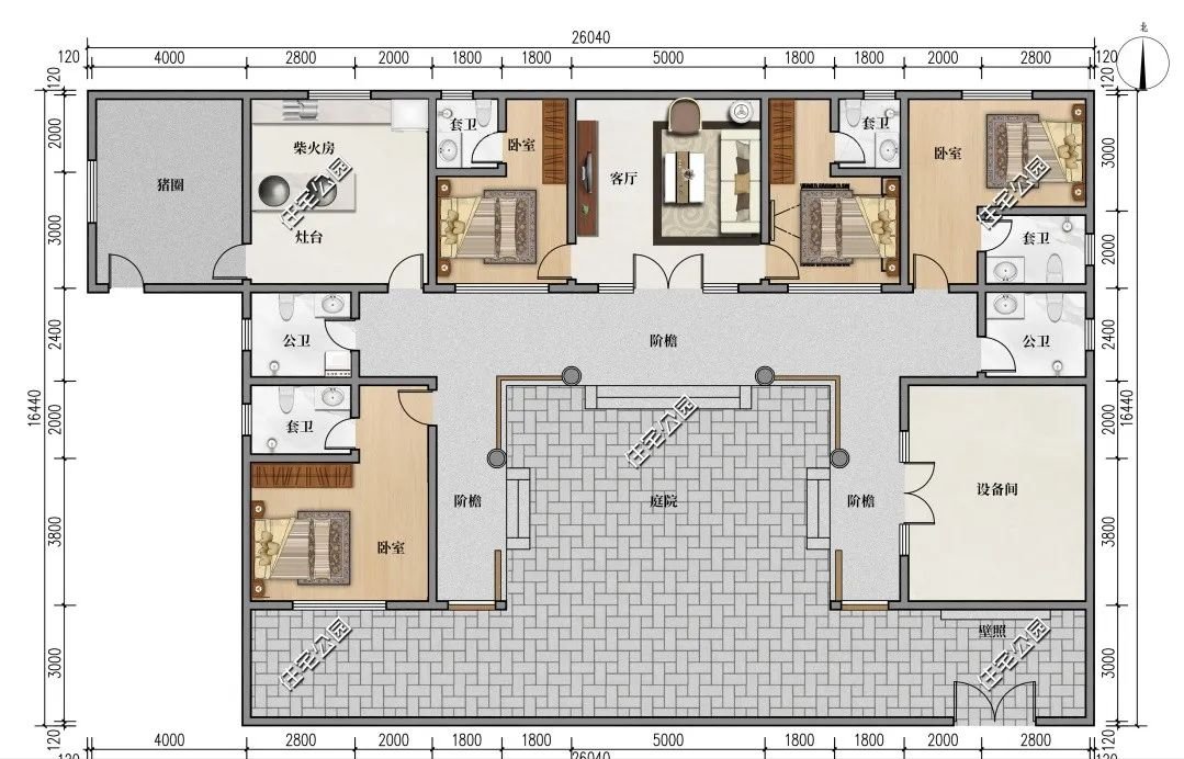
户型一:2172
占地尺寸:26.1m × 16.5m
占地面积:243㎡
建筑面积:243㎡
建筑高度:6.3m

户型二:2205
占地尺寸:12.1m × 11.1m
占地面积:120㎡
建筑面积:120㎡
建筑高度:3.6m


户型三:2231
占地尺寸:13.8m × 13.8m(含庭院)
占地面积:148.5㎡(不含庭院面积)
建筑面积:148.5㎡(不含庭院面积)
建筑高度:3.6m


户型四:2238
占地尺寸:12.95m × 23.25m
占地面积:168.24㎡(不含庭院)
建筑面积:223.14㎡(不含庭院)
建筑高度:6.2m



户型五:2243+
占地尺寸:12.4m × 23m
占地面积:161㎡(不含庭院)
建筑面积:161㎡(不含庭院)
建筑高度:6.05m


户型六:2275
占地尺寸:22.58m×24.78m
占地面积:207㎡(不含庭院)
建筑面积:207㎡(不含庭院)
建筑高度:6m


户型七:2277
占地尺寸:21.8m×6.5m(不含庭院)
占地面积:280㎡(不含庭院)
建筑面积:280㎡(不含庭院)
建筑高度:6.55m


户型八:2281
占地尺寸:12m×22.5m
占地面积:150㎡
建筑面积:150㎡
建筑高度:6.10m


户型九:2283+
占地尺寸:15m×22m
占地面积:210㎡
建筑面积:210㎡
建筑高度:7.55m


户型十:2286
占地尺寸:26m×20.1m
占地面积:274.6㎡
建筑面积:274.6㎡
建筑高度:7m


关注本号,更多农村自建房户型图欣赏,还有建房小知识,一手掌握。
声明:本网所登载内容出于更直观传递信息之目的。该内容版权归原作者所有,并不代表本网赞同其观点和对其真实性负责。若有来源错误或者侵犯您的合法权益,请及时通过邮箱rwzbs@126.com与我们联系,我们会及时反馈并进行处理。
本页链接:http://todaychina.zgshjdw.com/a140800-show/news-530.html